




check the YouTube video
Modern Living on 6.5 Perches: A 4-Bedroom Masterpiece in Godagama
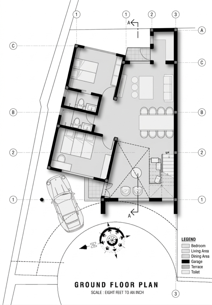
Castle Design introduces a stunning example of how minimalist design can create maximum impact, even on a compact land. Located in Godagama, this 1,950 sq.ft. architectural gem proves that you don’t need a massive plot to build your dream sanctuary.
Key Highlights:
- Space Optimization: A spacious 4-bedroom layout designed to fit perfectly on a 6.5-perch land.
- Modern Features: Includes an open-concept pantry for a seamless culinary experience and a cozy TV lobby for family relaxation.
- The Outdoors, Indoors: A beautiful roof terrace offers a private escape and fresh air.
- Architectural Flow: Every square foot is utilized to ensure a natural flow and a feeling of openness.
Whether you are looking for functionality or aesthetic appeal, this castledesign.lk by Foot Print of Archi (PVT) Ltd shows that “Quality of life comes with Quality Service.”
පර්චස් 6.5 ක ඉඩමක ඉදිවූ නිදන කාමර 4 ක අලංකාර නිවස – ගොඩගම
කුඩා ඉඩමක වුවද ඉතාමත් සැලසුම් සහගතව සහ නවීන පන්නයට සිහින නිවසක් ගොඩනගන්නේ කෙසේද යන්නට හොඳම උදාහරණයක් ගොඩගම ප්රදේශයෙන් Castle Design අප ඉදිරිපත් කර ඇත. පර්චස් 6.5 ක කුඩා ඉඩමක, වර්ග අඩි 1,950 කින් යුත් මෙම නිවස නිදහස් සහ සුවපහසු දිවියකට මග පාදයි.
මෙහි විශේෂාංග:
- ඉඩකඩ කළමනාකරණය: පර්චස් 6.5 ක ඉඩමක ඉතා මනාව සැලසුම් කළ නිදන කාමර 4 ක්.
- නවීන අංග: නවීන විලාසිතාවේ පැන්ට්රිය (Open-concept pantry) සහ පවුලේ සැමට විවේකීව සිටීමට හැකි රූපවාහිනී නැරඹුම් මැදිරිය (TV lobby).
- විවෘත සෙවිලි තට්ටුව (Roof Terrace): හිතේ නිදහසට සහ විවේකයට කදිම ඉඩකඩක් සහිත රූෆ් ටෙරස් එකක් මෙහි ඇතුළත් වේ.
- නිමාව: ඉතාමත් ආකර්ෂණීය සහ නවීන (Minimalist) නිමාවකින් මෙම නිවස නිමවා ඇත.
ඔබේ සිහින නිවසත් මේ ආකාරයෙන් ගුණාත්මක සේවාවක් සහිතව නිර්මාණය කර ගැනීමට CastleDesign.lk (Foot Print of Archi PVT Ltd) අප හා සම්බන්ධ වන්න.
